Gelijkvloers appartement
€ 325 000
Oostmalle
2
1
94 m²
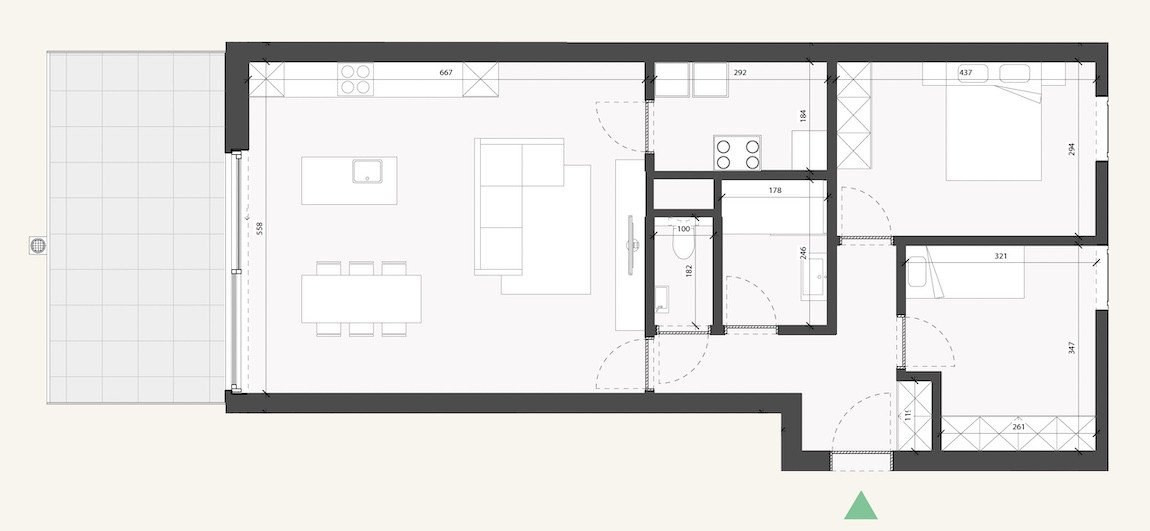
Een met duurzaam en kwaliteitsvolle materialen afgewerkt nieuwbouwappartement in residentie 'Renessehof' te Malle (Oostmalle). Het gelijkvloers appartement omvat inkomhal, woonkamer met open keuken, wasplaats, apart toilet, badkamer, 2 slaapkamers, terras, ondergrondse parking en kelderberging.
Het parkappartement is gelegen midden in het groen en nabij het levendige centrum van Oostmalle. Verder is Domein de Renesse gelegen op wandelafstand.
Het betreft een nieuwbouwproject van 21 prachtige parkappartementen (met 1, 2 of 3 slaapkamers) en 5 penthouses.
De verkoopprijs van het nieuwbouwappartement is exclusief de ondergrondse parking en de kelderbering (verkoop onder Wet Breyne).
Voor verdere informatie of inzage brochure en lastenboek kan u steeds terecht op ons kantoor te Beerse, Pastoriestraat 14.
Algemeen
- Type gelijkvloers appartement
- Bebouwing gesloten
- Bouwjaar 2025
- Bruto vloeroppervlakte 94 m2
- Oppervlakte terras 18 m2
- Oriëntatie terras N
- Energiescore label A
Stedenbouwkundige inlichtingen
- Stedenbouwkundige vergunning ja
- Stedenbouwkundige bestemming woongebied
- Dagvaarding geen
- Voorkooprecht geen
- Verkavelingsvergunning geen
- Overstromingsgevoelig gebied geen
- P-score A
Financieel
- Verkoopprijs appartement 325 000 €
- Registratierechten (12%) 11 700 €
- BTW (21%) 48 602 €
- Verkoopprijs autostaanplaats 30 000 €
- Registratierechten autostaanplaats (12%) 1 080 €
- BTW autostaanplaats (21%) 4 489 €
- Verkoopprijs berging 7 000 €
- Registratierechten berging (12%) 252 €
- BTW berging (21%) 1 072 €
Documenten / plannen
- VERKOOPPLAN bekijk doc
- LASTENBOEK bekijk doc
Indeling
- Inkom 6,5 m2
- Toilet 1,8 m2
- Woonkamer met open keuken 37,2 m2
- Wasplaats 5,4 m2
- Badkamer 4,4 m2
- Slaapkamer 1 12,8 m2
- Slaapkamer 2 10,5 m2
- Terras 18 m2
Afwerking / comfort
- Buitenschrijnwerk aluminium
- Beglazing dubbel
- Verwarming vloerverwarming
- Ventilatiesysteem D-systeem
- Zonnepanelen ja
- Warmtepomp ja
Doe een bod
Informatie
Naast de widget voorzien we ruimte voor een begeleidende tekst. We adviseren om hier kort toe te lichten hoe Smartbid werkt, zodat bezoekers met vertrouwen aan het biedingsproces beginnen.



