Appartement
€ 272 000
Oostmalle
1
1
70 m²
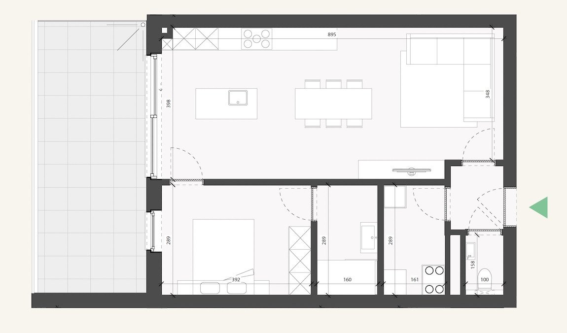
Een met duurzaam en kwaliteitsvolle materialen afgewerkt nieuwbouwappartement in residentie 'Renessehof' te Malle (Oostmalle). Het appartement op de 1ste verdieping omvat inkomhal, woonkamer met open keuken, wasplaats, apart toilet,1 slaapkamer met ensuite badkamer, terras, ondergrondse parking en kelderberging.
Het parkappartement is gelegen midden in het groen en nabij het levendige centrum van Oostmalle. Verder is Domein de Renesse gelegen op wandelafstand.
Het betreft een nieuwbouwproject van 21 prachtige parkappartementen (met 1, 2 of 3 slaapkamers) en 5 penthouses.
De verkoopprijs van het nieuwbouwappartement is exclusief de ondergrondse parking en de kelderbering (verkoop onder Wet Breyne).
Voor verdere informatie of inzage brochure en lastenboek kan u steeds terecht op ons kantoor te Beerse, Pastoriestraat 14.
Algemeen
- Type appartement (1ste verdiep)
- Bebouwing gesloten
- Bouwjaar 2025
- Bruto vloeroppervlakte 70 m2
- Oppervlakte terras 21 m2
- Oriëntatie terras N
- Energiescore label A
Stedenbouwkundige inlichtingen
- Stedenbouwkundige vergunning ja
- Stedenbouwkundige bestemming woongebied
- Dagvaarding geen
- Voorkooprecht geen
- Verkavelingsvergunning geen
- Overstromingsgevoelig gebied geen
- P-score A
Financieel
- Verkoopprijs appartement 272 000 €
- Registratierechten (12%) 9 792 €
- BTW (21%) 40 727 €
- Verkoopprijs autostaanplaats 30 000 €
- Registratierechten autostaanplaats (12%) 1 080 €
- BTW autostaanplaats (21%) 4 489 €
- Verkoopprijs berging 7 000 €
- Registratierechten berging (12%) 252 €
- BTW berging (21%) 1 072 €
Documenten / plannen
- VERKOOPPLAN bekijk doc
- LASTENBOEK bekijk doc
Indeling
- Inkom 2,5 m2
- Toilet 1,6 m2
- Woonkamer met open keuken 34,8 m2
- Wasplaats 4,6 m2
- Badkamer 4,6 m2
- Slaapkamer 1 11,3 m2
- Terras 21 m2
Afwerking / comfort
- Buitenschrijnwerk aluminium
- Beglazing dubbel
- Verwarming vloerverwarming
- Ventilatiesysteem D-systeem
- Zonnepanelen ja
- Warmtepomp ja



